Overview
- Updated On:
- December 12, 2025
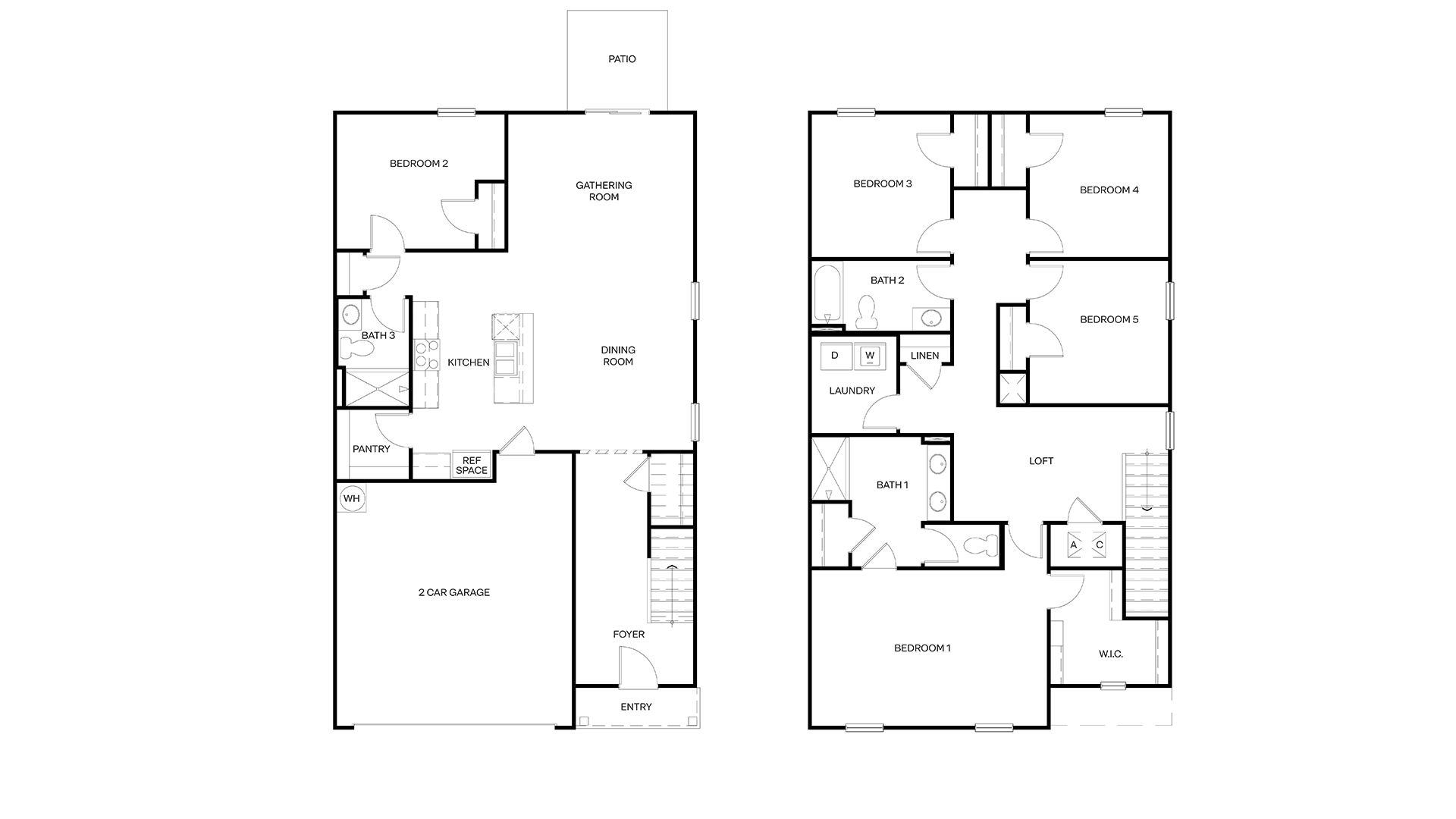
- 5 Bedrooms
- 3 Bathrooms
- 2,363 ft2 Sqft
- 2 Garages
Model Description
Single family splendor in Bunnell, FL.
Welcome home to the Grand Reserve community by DR Horton! The Robie is a 2 story home that boasts a generous 2363 square feet of living space. With 5 bedrooms, 3 bathrooms, and a 2 car garage, you’ll have plenty of space for the whole family and all of your stuff. This home in North Florida includes loads of amenities, is close to great schools, and is one of the best deals in 32110. Priced at just $341990, your new home in Grand Reserve awaits.
About this floor plan
Welcome to Grand Reserve, a golf community in Bunnell, Florida. Nestled upon the Grand Reserve Golf Course, this community features beautiful views and offers four floor plans ranging from 3 to 4 bedrooms, up to 2 bathrooms, and 2-car garages.
Located only 15 minutes from Flagler County beaches, these 1-story homes bring the Florida lifestyle right to your front door. Residents of this community enjoy the diverse amenities including a resort-style pool and club house perfect for the warm, summer weather. A fitness center, bocce courts, fishing pond, and pickleball courts are available for those seeking an active lifestyle. The Grand Reserve Golf Club also offers a club house and restaurant. Whether you’re looking to socialize, entertain, or relax, this community offers something for everyone. Conservation and golf course views surround many of the homes in Grand Reserve. Enjoy feeling immersed in spectacular Florida nature from the comfort of your home with ponds, greenery, and friendly wildlife seen across the community. These beautiful scenes also reach your own yard with homes featuring thoughtful landscaping and low-maintenance designs. Homes in this neighborhood also include smart home technology, so you can control the interior of your home from any distance. Just open your phone to adjust the temperature, lights, and door locks. Schedule a tour of Grand Reserve today to learn more about its highly sought-after location, amenities, and layouts.
about this plan
Property Details
Property Address
Map
Amenities and Features
Payment Calculator
- Principal and Interest
- Property Tax
- HOA fee















