Cypress Meadows – Classic Series: Yellowstone Model
$ 319,990
7325 Carson View Lane, Jacksonville, Cypress Meadows - Classic Series
Overview
- Updated On:
- November 1, 2025
- 4 Bedrooms
- 2.5 Bathrooms
- 2,168 ft2 Sqft
- 2 Garages
Model Description
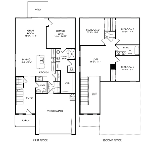
The Yellowstone model at Cypress Meadows – Classic Series features 4 bedrooms, 2.5 bathrooms, 2168 sqft, 2 car garage and is a 2 story home. This home priced from $319,990. Cypress Meadows – Classic Series is a new pre-construction single-family home community in Jacksonville Florida built by Meritage Homes.
The first-floor primary suite ensures everyone has their own private space in the home. Enjoy a spacious loft on the second-story that can be used to best fit your lifestyle. Enjoy prepping meals at the kitchen island that overlooks the dining area.
Energy Class: A+
Energy class A+
A+A
B
C
D
E
F
G
H
Property Details
Property Id : 1042144
Price: $ 319,990
Property Size: 2,168 ft2
Bedrooms: 4
Bathrooms: 2.5
Garages: 2
Builder: Meritage Homes
Property Address
Address: 7325 Carson View Lane
City: Jacksonville
State/County: Florida
Zip: 32219
Country: United States
Open In Google Maps
Map
Amenities and Features
Other Features
Covered Pavilion
Picnic Tables
Playground
Payment Calculator
$ 1,734.21
per month- Principal and Interest
- Property Tax
- HOA fee
$ 1,374.22
Models
Cypress Meadows – Classic Series
From $ 271,990
Category: Single Family,
Bedrooms: 3,
Baths: 2,
Size: 1 ft2
Contact Cypress Meadows – Classic Series: Yellowstone Model Specialist
Schedule a showing?
Virtual Tour
Similar Listings
Oak Creek Preserve: Silver Maple Model
$ 554,990
Silver Maple Model at Oak Creek Preserve in Jacksonville, FL built by Century Communities. ...
Silver Maple Model at Oak Creek Preserve in Jacksonville, FL built by Century Communities. Floorplan with 5 beds, 4 baths, 3161 sqft from $554990
Palm Series at The Landings at Pecan Park: S...
$ 314,990
Sanibel Model at Palm Series at The Landings at Pecan Park in Jacksonville, FL built by Ce ...
Sanibel Model at Palm Series at The Landings at Pecan Park in Jacksonville, FL built by Century Communities. Floorplan with 4 beds, 2 baths, 1533 sqft from $31 ...
Magnolia Series at The Landings at Pecan Par...
$ 395,990
Cumberland Model at Magnolia Series at The Landings at Pecan Park in Jacksonville, FL buil ...
Cumberland Model at Magnolia Series at The Landings at Pecan Park in Jacksonville, FL built by Century Communities. Floorplan with 4 beds, 3 baths, 2574 sqft f ...
Oak Creek Preserve: River Birch Model
$ 529,990
River Birch Model at Oak Creek Preserve in Jacksonville, FL built by Century Communities. ...
River Birch Model at Oak Creek Preserve in Jacksonville, FL built by Century Communities. Floorplan with 3 beds, 3 baths, 2770 sqft from $529990




















