Overview
- Updated On:
- December 12, 2025
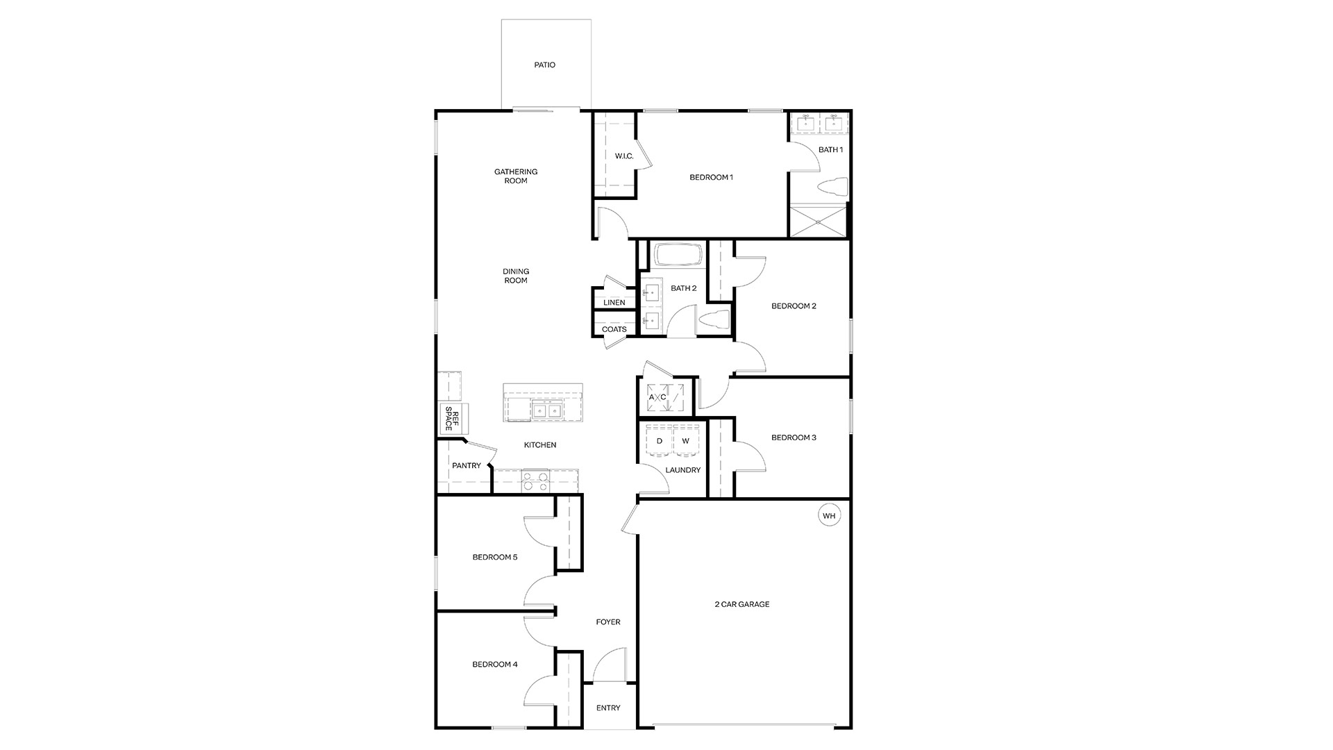
- 5 Bedrooms
- 2 Bathrooms
- 1,657 ft2 Sqft
- 2 Garages
Model Description
Homes in 32218 The Arbors: Single family
In the market for a new home in North Florida? Come see why the Dundee by DR Horton will be the home of your dreams. In a full 1657 square foot of area, you’ll have 5 bedrooms and 2 bathrooms. These 1 story Single familystyle residences also come with a 2 car garage and plenty of storage.
And you can afford to live in The Arbors for merely $330990! Did we mention the conveniences? You’ll get full access to everything: Pool;
Exercise – Fitness;
Club House;
Playground;
Splash Pad;. Don’t put it off any longer: come see it for yourself.
About this floor plan
Welcome to The Arbors, a new home community located in Jacksonville’s rapidly expanding Northside. These 3-to-5-bedroom homes offer up to 2,499 sq. ft. of living space and the perfect opportunity to start your new home journey in one of the city’s most desirable areas. Located just a few miles from the expansive River City Marketplace, The Arbors offers convenient access to a wide range of shopping, dining, and entertainment options. Plus, with Jacksonville International Airport nearby, traveling has never been easier. Whether you’re commuting or exploring the city, you’ll love the ideal location of this new home community.
At The Arbors, residents enjoy a variety of amenities designed for relaxation and recreation. Dive into the refreshing pool on warm Florida days, stay active at the fitness center, or let the kids explore the splash pad and the playground. Plus, plans for a future amenity expansion are underway! This is a community built with families in mind, offering something for each member of the family.D.R. Horton’s affordable Express Series Homes are perfect for first-time homebuyers or those looking to upgrade to a modern, well-designed home. Each home features the quality craftsmanship and thoughtful design D.R. Horton is known for as well as smart home technology products that will keep you connected to your home no matter the distance.Discover The Arbors today and find the perfect place to call home. Schedule a tour or give us a call to connect with an Online Sales Concierge and learn more about this new community.
about this plan
Property Details
Property Address
Map
Amenities and Features
Payment Calculator
- Principal and Interest
- Property Tax
- HOA fee






















