Ensley Model | Northwater at Two Rivers
Overview
- Updated On:
- December 12, 2025
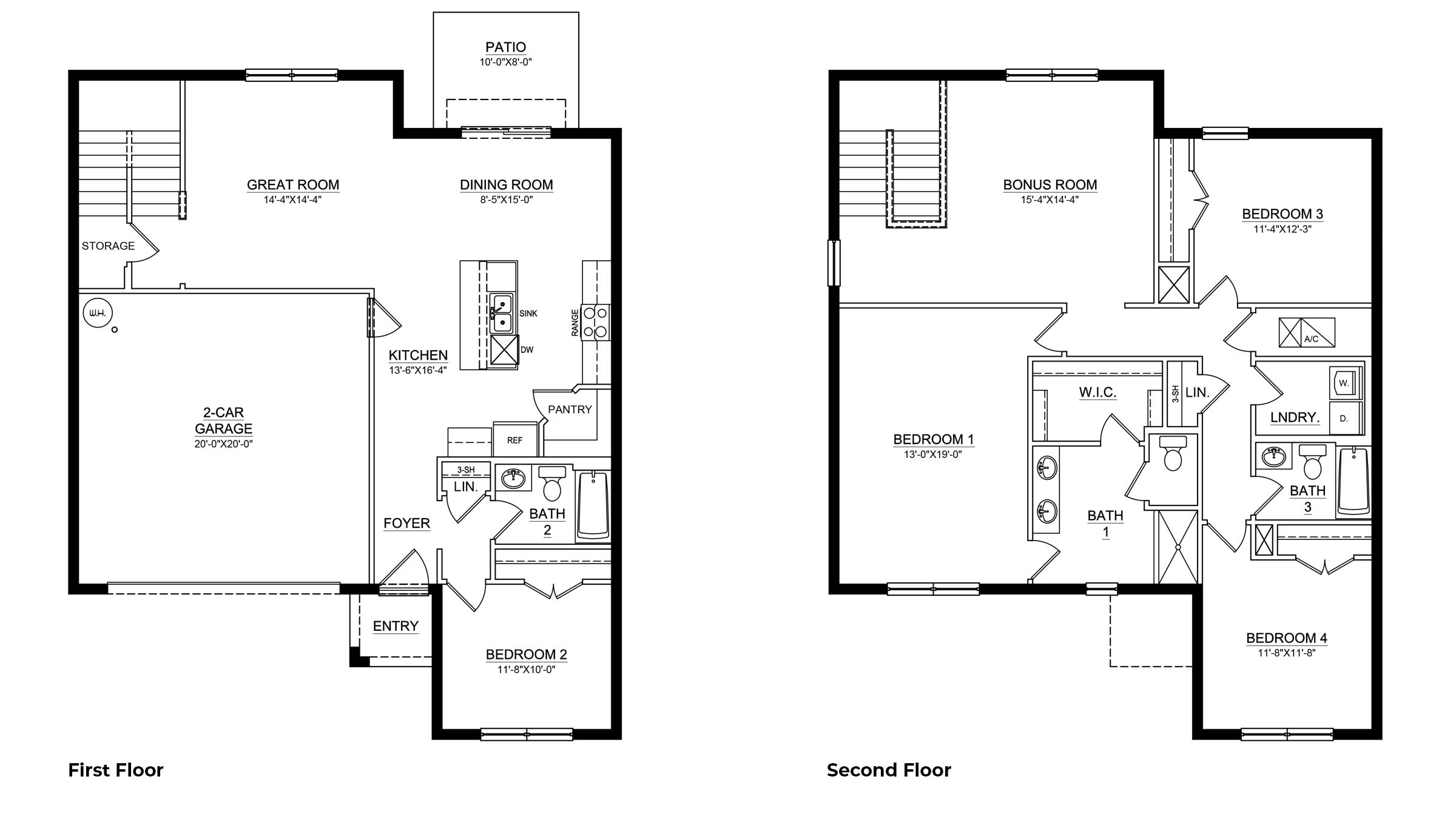
- 4 Bedrooms
- 3 Bathrooms
- 2,371 ft2 Sqft
- 2 Garages
Model Description
All this for $419990!
has never looked so great — or so affordable! DR Horton presents the Ensley, a spacious 2 story home in Northwater at Two Rivers. With 4 bedrooms, 3 bathrooms, a 2 car garage, and 2371 square feet of living space, you and your family will have all the room you need. One look at this home, and you’ll be convinced.
About this floor plan
This two-story concrete-block-constructed home features an open concept first-floor living space with a guest bedroom on the first floor. The stairs to the second story land in a spacious bonus room fit to serve as an additional entertainment space, a playroom, or an office. Bedroom 1 includes an ensuite bath with a roomy walk-in closet. The laundry room is perfectly situated between the other two bedrooms next to the third bathroom. This home comes with a refrigerator, built-in dishwasher, electric range, microwave, washer, and dryer. Pictures, photographs, colors, features, and sizes are for illustration purposes only and will vary from the homes as built. Home and community information including pricing, included features, terms, availability and amenities are subject to change and prior sale at any time without notice or obligation. CBC039052.
Property Details
Property Address
Map
Amenities and Features
Payment Calculator
- Principal and Interest
- Property Tax
- HOA fee
























