Your search results

Hayden Model | Oaks Preserve

$ 455,990
5131 SW 51st Road, ,

Overview

  • Updated On:
  • December 12, 2025
  • 5 Bedrooms
  • 3 Bathrooms
  • 2,516 ft2 Sqft
  • 2 Garages

Model Description


splendor in GAINESVILLE, FL.
Welcome home to the Oaks Preserve community by DR Horton! The Hayden is a 2 story home that boasts a generous 2516 square feet of living space. With 5 bedrooms, 3 bathrooms, and a 2 car garage, you’ll have plenty of space for the whole family and all of your stuff. This home in West-Central-Florida includes loads of amenities, is close to great schools, and is one of the best deals in 32608. Priced at just $455990, your new home in Oaks Preserve awaits.

About this floor plan

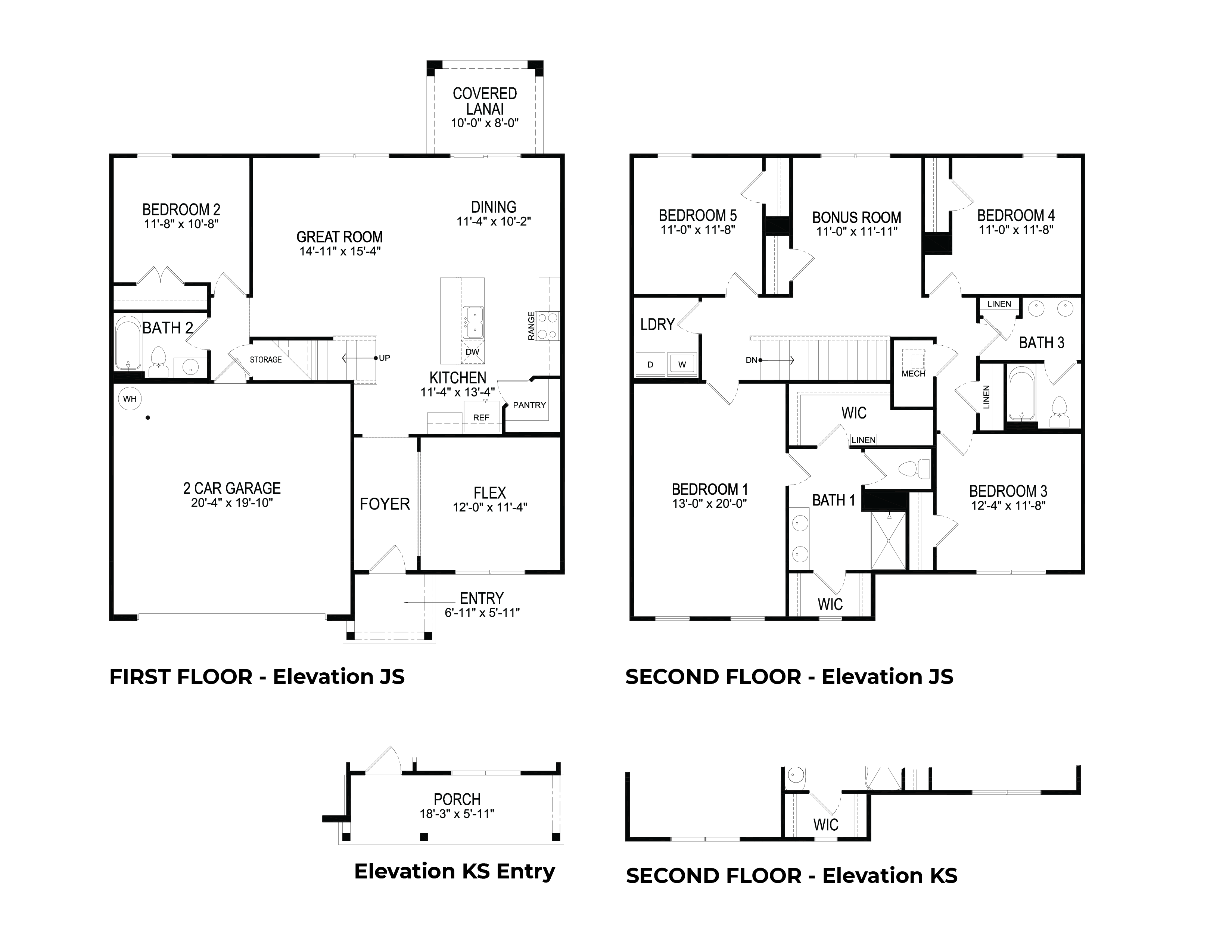
Elevate your lifestyle in our popular two-story, all concrete block constructed home available in Oaks Preserve, in Gainesville, Florida. The Hayden is a five bedroom and three bathroom home, with an open-concept floorplan and flexible living space along with a two-car garage.The first floor features the flex room, kitchen, dining area, great room, and bedroom with a full bathroom nearby. A central kitchen island with quartz countertops overlooks the great room that leading outside to the patio. Along with a spacious pantry and ample countertop space for cooking, stainless-steel appliances such as a microwave, range, and built-in dishwasher are included with the Hayden.

Upstairs, the Owner’s Suite features an ensuite bathroom with a double vanity, quartz countertops, and two walk-in closets. Separated by the loft are three additional bedrooms with carpeted floors and closets, along with a second upstairs bathroom. Whether these rooms become bedrooms or home offices, there is sure to be a place for all. The laundry room is conveniently located upstairs next to the bedrooms.Like all homes in Oaks Preserve, the Hayden includes a state-of-the-art smart home system that keeps you connected to your home at all times, whether you’re 5-minutes or a plane ride away.

about this plan

Energy Class: A+
Energy class A+
A+
A
B
C
D
E
F
G
H

Property Details

Property Id : 1115775
Price: $ 455,990
Property Size: 2,516 ft2
Bedrooms: 5
Bathrooms: 3
Model Count: 11
Garages: 2
Builder: DR Horton -

Property Address

Address: 5131 SW 51st Road
State/County:
Zip: 32608
Country: United States
Open In Google Maps

Map

Transport
Supermarkets
Schools
Restaurants
Pharmacies
Hospitals

Amenities and Features

Other Features
10-minutes to The University of Florida
Bike Path
Butler Plaza
Close to UF Health Shands Hospital and HCA North Florida Hospital
Lofty ceilings
Nearby the Oaks Mall &amp
Quartz Countertops
Seconds to Celebration Pointe
Smart Home Technology
Stainless Steel Appliances
Stone accent exteriors

Payment Calculator

$ 1,958.28
per month
  • Principal and Interest
  • Property Tax
  • HOA fee
$ 1,958.28

Models

Oaks Preserve
Oaks Preserve
From $ 356,990
Category: ,
Bedrooms: 3,
Baths: 2,
Size: 1,619 ft2
Darwin Model | Oaks Preserve
Category: ,
Bedrooms: 3,
Baths: 2.5,
Size: 1,886 ft2
Robie Model | Oaks Preserve
Category: ,
Bedrooms: 5,
Baths: 3,
Size: 2,370 ft2

Contact Hayden Model | Oaks Preserve Specialist

Schedule a showing?

Floor Plans

Hayden Floorplan
Hayden Floorplan

Virtual Tour

Similar Listings

Robie Model | Oaks Preserve

$ 406,990
Robie Model at Oaks Preserve in GAINESVILLE, FL built by DR Horton-. Floorplan with 5 beds ...
5 3 2,370 ft2details

Madison Model | Oaks Preserve

$ 399,990
Madison Model at Oaks Preserve in GAINESVILLE, FL built by DR Horton-. Floorplan with 4 be ...
4 3 1,956 ft2details

Holden Model | Oaks Preserve

$ 463,990
Holden Model at Oaks Preserve in GAINESVILLE, FL built by DR Horton-. Floorplan with 4 bed ...
4 3 3,209 ft2details

Hemingway Model | Oaks Preserve

$ 447,990
Hemingway Model at Oaks Preserve in GAINESVILLE, FL built by DR Horton-. Floorplan with 5 ...
5 3 2,836 ft2details

Compare Listings